Aan de Bellinistraat 35 in Tilburg ligt deze verzorgde tussenwoning uit 1966, die in 2023 grotendeels is gerenoveerd. De woning combineert een prettige indeling met modern wooncomfort en is volledig voorbereid op de toekomst.
De begane grond is volledig verbouwd en biedt een lichte, comfortabele leefruimte met een moderne uitstraling. De schuur is deels gerenoveerd en voorziet in extra bergruimte. Ook het onderhoud is recent uitgevoerd: de buitenkozijnen zijn in 2024 geschilderd en de buitenmuren zijn gestraald, opnieuw gevoegd en geïmpregneerd. Op de verdiepingen beschikt de woning over vier slaapkamers, geschikt voor gezinnen, thuiswerken ...
Aan de Bellinistraat 35 in Tilburg ligt deze verzorgde tussenwoning uit 1966, die in 2023 grotendeels is gerenoveerd. De woning combineert een prettige indeling met modern wooncomfort en is volledig voorbereid op de toekomst.
De begane grond is volledig verbouwd en biedt een lichte, comfortabele leefruimte met een moderne uitstraling. De schuur is deels gerenoveerd en voorziet in extra bergruimte. Ook het onderhoud is recent uitgevoerd: de buitenkozijnen zijn in 2024 geschilderd en de buitenmuren zijn gestraald, opnieuw gevoegd en geïmpregneerd. Op de verdiepingen beschikt de woning over vier slaapkamers, geschikt voor gezinnen, thuiswerken of logees. Daarnaast zijn nieuwe binnendeuren geplaatst, is de elektra in de gehele woning vernieuwd en zijn de trappen recent geschilderd en opnieuw gestoffeerd (2026).
De woning is rondom geïsoleerd, de gevels zijn vernieuwd en de voordeur is vervangen. In combinatie met het energielabel A resulteert dit in een comfortabele en energiezuinige woning met lage vaste lasten.
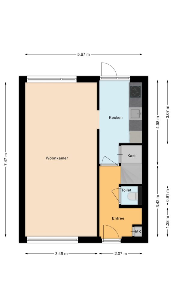
Indeling
Begane grond
Via de voordeur kom je binnen in de entree/hal, waar zich de meterkast, een praktische garderoberuimte en een modern toilet met wandcloset bevinden. Vanuit de hal leidt de trap naar de eerste verdieping. De hal biedt tevens toegang tot de keuken.
De keuken is bereikbaar vanuit de hal en is uitgevoerd in een lichte, tijdloze opstelling met voldoende kastruimte en een praktische indeling. De keuken is circa 2012 geplaatst en verkeert in nette staat.
De keuken is voorzien van diverse inbouwapparatuur, waaronder een inductiekookplaat (Whirlpool) met bijbehorende afzuigkap, een vaatwasser (Whirlpool), een koelkast en een combi-oven, welke in 2022 is vervangen. Het werkblad en de neutrale afwerking zorgen voor een rustige uitstraling en maken de keuken direct bruikbaar. Vanuit de keuken is er een deur naar de achtertuin, wat zorgt voor extra licht, ventilatie en een prettige verbinding met buiten.
De woonkamer en het eetgedeelte vormen samen een ruime en lichte leefruimte met een warme, moderne uitstraling. De visgraat gelegde pvc-vloer geeft de ruimte karakter en zorgt voor een luxe basis die perfect past bij verschillende woonstijlen.
De wanden zijn strak gestuct, wat bijdraagt aan de rustige en verzorgde uitstraling. De radiatoren zijn vervangen, wat niet alleen zorgt voor een moderne look, maar ook voor comfortabel en efficiënt verwarmen.
Dankzij de grote raampartijen valt er prettig veel daglicht binnen, waardoor zowel de zithoek als het eetgedeelte een aangename plek is om te ontspannen of samen te komen.
Het eetgedeelte biedt ruim plaats voor een grote eettafel, ideaal voor diners of gezellige avonden met vrienden en familie.
Een fijne, instapklare leefruimte waar comfort en sfeer moeiteloos samenkomen.
Eerste verdieping
Op de eerste verdieping bevinden zich vier slaapkamers, wat deze woning bijzonder geschikt maakt voor gezinnen, thuiswerken of het creëren van een hobby- of logeerkamer. Alle slaapkamers zijn voorzien van een laminaatvloer en beschikken over een radiator, wat zorgt voor comfortabel wonen in elke ruimte.
De badkamer is compact en volledig betegeld, maar praktisch ingericht. De ruimte beschikt over een inloopdouche en een wastafel met bijbehorend meubel, waardoor alles aanwezig is voor comfortabel dagelijks gebruik.
De verdieping is praktisch ingedeeld en biedt volop flexibiliteit in gebruik, passend bij verschillende woonwensen. Een fijne, functionele verdieping met verrassend veel ruimte.
Tweede verdieping/zolder
De zolderverdieping is een praktische en veelzijdige ruimte, voorzien van twee Velux dakramen die zorgen voor prettig daglicht. Het dak is geïsoleerd, wat bijdraagt aan het comfort en de energiezuinigheid van de woning.
Op deze verdieping bevindt zich de aansluiting voor de wasmachine. Daarnaast zijn er vier loze leidingen aangebracht richting de meterkast, wat extra mogelijkheden biedt voor toekomstige aanpassingen, zoals extra elektra of data-aansluitingen.
Een functionele zolder met veel potentie voor opslag, werkruimte of een extra slaapkamer.
De tuin
De woning beschikt over een verzorgde achtertuin op het noorden, aangelegd met grote terrastegels, wat zorgt voor een strakke en onderhoudsvriendelijke buitenruimte. Dankzij de ruime opzet is er voldoende plek voor een zitgedeelte en eventueel groen.
Achter in de tuin bevindt zich een schuurtje/berging, ideaal voor fietsen, gereedschap of extra opslag. De tuin is bovendien bereikbaar via een achterom, toegankelijk via de deur in de schuur — praktisch en prettig in het dagelijks gebruik.
Ligging
Bellinistraat 35 is gelegen in een rustige en kindvriendelijke woonstraat in Tilburg, met alle dagelijkse voorzieningen binnen handbereik. Supermarkten, scholen, sportvoorzieningen en openbaar vervoer bevinden zich op korte afstand, wat de locatie praktisch en comfortabel maakt voor dagelijks gebruik.
De woning ligt gunstig ten opzichte van uitvalswegen, waardoor omliggende plaatsen en andere delen van Tilburg snel en eenvoudig bereikbaar zijn. Tegelijkertijd woon je hier in een prettige woonomgeving met voldoende rust en privacy.
Hihglights
– Instapklare tussenwoning, grotendeels gerenoveerd
– 4 slaapkamers
– Energielabel A & volledig geïsoleerd
– Moderne woonkamer met visgraat pvc-vloer
– Keuken met inbouwapparatuur
– Zolder met 2 Velux dakramen en wasmachine-aansluiting
– Achtertuin op het noorden met berging en achterom