Broeksestraat 65
4269 VE Babylonienbroek
€ 875.000 k.k.
Inhoud
1.021 m3
Bouwjaar
1760
Slaapkamers
4
Woonopp.
177 m2
Perceel
1.451 m2
Overzicht
Deze sfeervolle woonboerderij de Meadow-View, oorspronkelijk gebouwd rond 1760, is met zorg en liefde volledig gerestaureerd en tot in detail afgewerkt. Met liefde voor restauratie van de oude traditionele boerderij met oog voor behoud van originele vintage elementen.
Tijdens de grondige restauratie in 2007 is met veel respect voor het verleden gewerkt: originele elementen zoals houten balken, karakteristieke vloeren en andere vintage details zijn behouden gebleven. Deze authentieke kenmerken vormen een harmonieus geheel met de moderne voorzieningen, waardoor een unieke combinatie ontstaat van historie en hedendaags wooncomfort.
De woning b...
Deze sfeervolle woonboerderij de Meadow-View, oorspronkelijk gebouwd rond 1760, is met zorg en liefde volledig gerestaureerd en tot in detail afgewerkt. Met liefde voor restauratie van de oude traditionele boerderij met oog voor behoud van originele vintage elementen.
Tijdens de grondige restauratie in 2007 is met veel respect voor het verleden gewerkt: originele elementen zoals houten balken, karakteristieke vloeren en andere vintage details zijn behouden gebleven. Deze authentieke kenmerken vormen een harmonieus geheel met de moderne voorzieningen, waardoor een unieke combinatie ontstaat van historie en hedendaags wooncomfort.
De woning biedt verrassend veel leefruimte, met een sfeervolle begane grond vol functionele vertrekken en een royale bovenverdieping met vier kamers. Het geheel staat op een royaal perceel van maar liefst 1.451 m² en is omgeven door groen en water. De met zorg aangelegde tuin, de charmante winery, de houten blokhut en de vrijstaande garage met carport maken het buitenleven hier compleet.
Indeling:
Begane grond:
Via de achterdeur betreedt u de woning en komt u in de eerste entree, afgewerkt met originele plavuizen van maar liefst 250 jaar oud. Vanuit deze hal zijn diverse ruimtes direct toegankelijk. Zo bereikt u vanuit hier een ruime slaapkamer, die ook op dit moment uitstekend dienst doet als werkkamer. De kamer is stijlvol afgewerkt met dezelfde authentieke plavuizen als in de hal, voorzien van draairaam, een strak gestucte muur, een houten balkenplafond en centrale verwarming. Het uitzicht over de achtertuin maakt deze ruimte tot een fijne en rustige werk- of slaapomgeving.
Het aangebouwde gedeelte van de woning heeft op de begane grond vloerverwarming in de badkamer, de hal, het toilet en de slaapkamer(1)/werkkamer.
Ook de ruime badkamer grenst aan deze hal. Deze is deels betegeld en voorzien van een ligbad met bubbelfunctie, een inloopdouche met zitplekken, een vast wastafelmeubel met twee wasbakken en twee ramen, die zorgen voor natuurlijke ventilatie en daglicht.
Het toilet is eveneens via deze hal bereikbaar. Deze is deels betegeld en beschikt over een sfeervol boerderijraampje. Direct naast het toilet staat een charmant, Frans wastafelmeubel – een bijzonder en karakteristiek detail dat prachtig past binnen de landelijke stijl van de woning.
Vanuit de eerste hal komt u in de ruime centrale hal van de woning. Deze vormt het centrale verbindingspunt in de woning en biedt toegang tot de woonkamer, de woonkeuken, de bijkeuken en de trap naar de eerste verdieping. Hier bevindt zich tevens de officiële hoofdingang, passend bij de statige uitstraling van de boerderij.
De ruime woonkeuken is bereikbaar via een aparte deur. Deze keuken is praktisch en sfeervol ingericht in een L-vorm, met een hoge kastenwand en een centraal eiland met extra kastruimte. De keuken is compleet uitgerust met moderne inbouwapparatuur, waaronder een koelkast, oven, magnetron, inductiekookplaat en een vaatwasser. Dankzij de aanwezige draairamen is er natuurlijke ventilatie in de ruimte.
Via een karakteristieke stenen toog loopt u door naar de eetkamer. Hier komt het authentieke karakter van de woning volledig tot zijn recht. De ruimte is voorzien van een houten vloer, glad gestucte wanden en wordt verwarmd middels centrale verwarming. Een bijzonder detail is de originele staldeur, die de geschiedenis van het pand tastbaar maakt. De zichtbare houten balken versterken de warme, landelijke uitstraling van deze kamer. Via een kleine opstap bereikt u de woonkamer.
De sfeervolle woonkamer is een uitnodigende ruimte met een houten vloer, gedeeltelijk glad gestucte wanden en een gezellige houtkachel geplaatst in een betegelde schouw. De originele details zijn ook hier behouden: de ramen zijn voorzien van voorzetramen. In de woonkamer bevindt zich tevens de omgebouwde meterkast.
Via een deur in de woonkamer heeft u weer toegang tot de centrale hal, waar ook ruimte is gecreëerd voor een garderobe. Aansluitend vindt u de bijkeuken, een praktische afgewerkte ruimte. Deze is voorzien van een keukenkast met wasbak, wateraansluiting, de Nefit Ecomline Excellent cv-ketel en een aansluiting voor wasmachine en droger. De vloer is hier – net als in de hal – afgewerkt met de karakteristieke, 250 jaar oude plavuizen, en de wanden zijn volledig glad gestuct.
Aan de achterzijde van de woning bevindt zich de charmante winery, een bijzondere tuinkamer die volledig van hout is vervaardigd. De ruimte is sfeervol afgewerkt met een tegelvloer en een lichtdoorlatend polycarbonaat dak, dat zorgt voor een warme, natuurlijke ambiance. Gedeeltelijk voorzien van een hor en uitgerust met elektriciteit, is deze plek ideaal om in alle rust te genieten.
Het hart van de winery wordt gevormd door vijf prachtige blauwe druivenstruiken die sierlijk omhoog groeien en de ruimte een authentieke wijnliefhebberssfeer geeft. Een houten, afsluitbare deur zorgt voor privacy en geborgenheid. Vanuit de winery heeft u een betoverend uitzicht over de sierlijke achtertuin, een perfecte plek om te ontspannen en de liefde voor wijn en natuur samen te laten komen.
Eerste verdieping:
Vanaf de ruime hal gaat u via een houten trap naar de eerste verdieping. Vanaf de overloop is het volledig betegelde toilet met modern hangcloset gemakkelijk bereikbaar, wat een praktische toevoeging vormt.
De master bedroom is een ruime, lichte kamer met een dakkapel voorzien van hor en een Velux-dakraam, die zorgen voor een aangename frisse lucht en natuurlijk licht. De kamer is stijlvol afgewerkt met een warme vuurhouten vloer, glad gestucte muren en een authentiek houten balkenplafond. Een op maat gemaakte kast en een handig wasmeubel met warm en koud water maken deze ruimte compleet. Deze ruimte is voorzien van cv-verwarming.
De tweede slaapkamer is praktisch ingericht met een laminaatvloer, een houten wand en glad gestucte muren. De originele houten balk is hier verwerkt, wat extra karakter geeft. Dankzij de dakkapel met openslaande ramen en het houten balkenplafond geniet de kamer van veel natuurlijk licht en sfeer.
De tussenkamer is bijzonder ruim opgezet en biedt volop mogelijkheden om het helemaal naar eigen wens in te richten. Ook hier zorgen de dakkapel met openslaande ramen en de op maat gemaakte kledingkast voor comfort en sfeer. De kamer is voorzien van vloerbedekking en centrale verwarming.
Vanuit deze tussenkamer bereikt u de vierde slaapkamer. Deze veelzijdige ruimte heeft zowel een Velux-dakraam als een regulier raam, wat zorgt voor veel daglicht. Het houten balkenplafond, de glad gestucte muren en de vloerbedekking maken het een sfeervolle ruimte die perfect kan dienen als werkplek, inloopkast of slaapkamer.
Buitenruimte:
Rondom de woonboerderij ligt een prachtig aangelegde, sierlijke tuin die volledig in harmonie is met het landelijke karakter van de woning. Al bij aankomst zorgt een sierlijke appelboom in de voortuin voor een warm welkom. Via een bruggetje over de sloot, voorzien van een robuuste hardhouten beschoeiing, bereikt u de deels met grind belegde oprijlaan. Daarnaast is er op de oprit op nette wijze ruimte gecreëerd voor het stallen van een aanhangwagen.
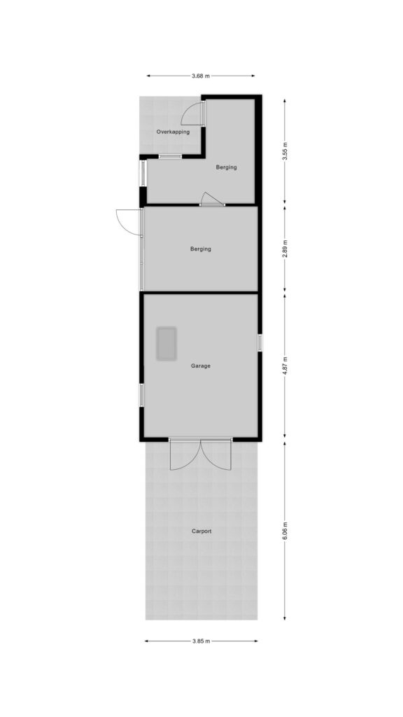
Op het erf bevindt zich een vrijstaande, charmante garage met carport. Deze is opgedeeld in drie functionele ruimtes, gescheiden door houten wanden. Aan de achterzijde ligt een betegelde berging, ideaal voor het stallen van fietsen en bereikbaar vanuit de tuin. Via een tussendeur betreedt u de grotere, eveneens betegelde berging met openslaande ramen en krachtstroom, uitermate geschikt als werk- of hobbyruimte. De garage heeft een betonnen vloer en dubbele deuren, ideaal voor het parkeren van een auto. Een vlizotrap geeft toegang tot een verrassend ruime vliering op stahoogte, die zich over de gehele garage uitstrekt. De garage is voorzien van een pannendak en buitenverlichting. Achter de garage bevindt zich bovendien een ruim houthok.
De tuin zelf is met zorg en oog voor detail ingericht. Een vijver met filtersysteem en pomp vormt een rustgevend middelpunt, omringd door volwassen beplanting, waaronder een perenboom en een oude appelboom die zorgen voor een authentieke en natuurlijke sfeer.
Achter in de tuin staat een volledig houten berging met overkapping, voorzien van elektra en buitenverlichting. Aan de linkerzijde is een praktische opslagruimte ingericht, ideaal voor tuingereedschap en liefhebbers van tuinieren. Achter de tuin, grenzend aan een sloot, zijn compostbakken geplaatst.
Deze tuin is niet alleen een lust voor het oog, maar ook een plek om echt van te genieten. Een groene oase van rust, natuur en talloze mogelijkheden, direct grenzend aan een unieke en sfeervolle woonboerderij.
Deze met zorg gerestaureerde boerderij combineert historische charme met modern comfort en biedt volop ruimte voor het buitenleven. Een zeldzame vondst voor wie op zoek is naar karakter, sfeer en vrijheid. Interesse? Neem dan contact op met Klijsen Makelaars & Adviseurs om een bezichtiging te plannen.
Specificaties



